99 barrierefreie Wohnungen in Bamberg
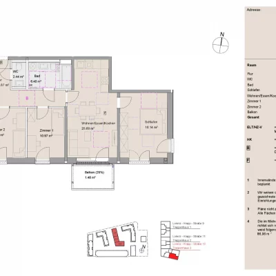
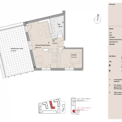
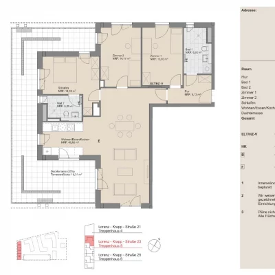
2 bis 4 Zimmer-Wohnungen zwischen 48 m² und 90 m² mit Fußbodenheizung und Balkon oder Terrasse für Paare, Rentner und Familien in Bamberg
Bamberg
Lorenz-Krapp-Straße 9, 11, 13, 21, 23 und 25
Lorenz-Krapp-Straße 9, 11, 13, 21, 23 und 25
99 barrierefreie Wohnungen
zwischen 48 und 90 m² groß
zwischen 48 und 90 m² groß
Kaltmiete: 6,40 € – 8,40 € /m²
(je nach Einkommen)
(je nach Einkommen)
Voraussichtlicher Erstbezug
im 1 Quartal 2026
im 1 Quartal 2026
ERSTBEZUG | 2 Zimmer-Wohnung
(nur mit Wohnberechtigungsschein EK-Stufe II)
ERSTBEZUG | 3 Zimmer-Wohnung
(nur mit Wohnberechtigungsschein EK-Stufe II)
ERSTBEZUG | 4 Zimmer-Wohnung
(nur mit Wohnberechtigungsschein EK-Stufe II)
ERSTBEZUG | 2 Zimmer-Wohnung
(nur mit Wohnberechtigungsschein EK-Stufe III)
ERSTBEZUG | 3 Zimmer-Wohnung
(nur mit Wohnberechtigungsschein EK-Stufe III)
ERSTBEZUG | 2 Zimmer-Wohnung
(freie Vermietung)
ERSTBEZUG | 3 Zimmer-Wohnung
(freie Vermietung)
ERSTBEZUG | 4 Zimmer-Wohnung
(freie Vermietung)
Keine Daten mehr
Auf die EOF-Wohnungen können Sie sich nur bewerben, wenn Sie den Wohnberechtigungsschein der Einkommensstufe II oder III besitzen. Mietinteressenten mit dem Wohnberechtigungsschein der Einkommensstufe I müssen Sie sich an die Stadt Bamberg wenden.
Ausstattung:
- Moderne Architektur
- Helle und offene Grundrisse
- Jede Wohnung verfügt über einen großzügigen Balkon oder Dachterrasse
- Mit hochwertigem Fußbodenbelag in Holzoptik inkl. Fußbodenheizung
- Helle, moderne Fliesen im Badezimmer/WC
- Badezimmer mit Badewanne und/oder ebenerdiger Dusche
- Barrierefreier Zugang und Aufzugsanlage von UG bis DG
- Auto,-fahrradstellplätze
Um sich auf eine geförderte Wohnung zu bewerben, benötigen Sie einen Wohnberechtigungsschein (WBS).
Antragstellerinnen und Antragsteller, die im Stadtgebiet von Bamberg wohnhaft sind, wenden sich bitte an folgende Stelle:
Antragstellerinnen und Antragsteller, die im Stadtgebiet von Bamberg wohnhaft sind, wenden sich bitte an folgende Stelle:
Stadt Bamberg
Amt für soziale Angelegenheiten, Soziale Wohnraumförderung
Promenadestr. 2a
96047 Bamberg
E-Mail: wohnraumfoerderung@stadt.bamberg.de
Sofern Sie nicht in Bamberg oder im Landkreis Bamberg wohnhaft sind, stellen Sie bitte Ihren Antrag auf einen WBS bei der Kreisverwaltungsbehörde Ihres Wohnortes.
Die BayernHeim freut sich auf Sie!
Einblicke in das Reallabor: Planung und Bau























































































